欢迎致电南宫NG28服务热线

0771-5389182
211m²企事业单位健身房

项目类型:企事业单位健身房

项目面积:211m²

在当今快节奏的工作环境中,企事业单位越来越重视员工的身心健康与工作效率之间的平衡。为了丰富职工的业余文化生活,提高与职工的身体素质和精神状态,广西南宫NG28体育携手企事业单位打造了设备齐全的职工健身房,它不仅是一个锻炼身体的场所,更是企业文化与人文关怀的生动体现,职工健身房的落成,受到了大家的一致好评。

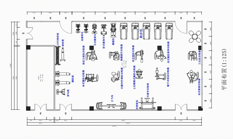
有氧器材区-提高心肺功能锻炼,改善心脑血管问题。

1.南宫NG28X6跑步机SH-T6700*5台;

2.南宫NG28X5-E椭圆机SH-B6500E*1台;

3.南宫NG28立式健身车SH-B6500U*1台;

4.南宫NG28卧式健身车SH-B6500R*1台;

5.南宫NG28动感单车SH-B599*2台;

力量器械区-让员工身体变得更加健硕,摆脱亚健康状态,力量器械区的器材搭配十分丰富,依据锻炼方式的不同,能够锻炼胸部、背部、手臂及腿部肌肉等,能全方位锻炼身体肌肉。

6.坐式胸肌推举训练器SH-G6801-锻炼部位:胸大肌、三角肌前束、三头肌;

7.坐式背肌训练器(划船)SH-G6803-锻炼部位:背部肌群、斜方肌、肱二头肌;

8.坐式推肩训练器SH-G6804-锻炼部位:三角肌、肱三头肌;

9.肩膊提升训练器SH-G6805-锻炼部位:三角肌,斜方肌,肱二头肌;

10.高拉力背肌训练器SH-G6806-锻炼部位:背阔肌,斜方肌下束,肱二头肌;

11.三头肌训练器SH-G6808-锻炼部位:肱三头肌、三角肌;

12.上位蝴蝶式胸肌训练器SH-G6813-锻炼部位:三角肌后束、斜方肌、肱二头肌、三角肌前束;

13.坐式腹肌训练器SH-G6816-锻炼部位:腹部肌肉;

14.躯干式转动训练器SH-G6818-锻炼部位:腰腹部肌群;

15.大腿内外侧肌训练器SH-G6819-锻炼部位:大腿内外侧肌;

16.十字架拉力训练器(大飞鸟)SH-G6852-锻炼部位:胸大肌、三角肌、肱二头肌、肱三头肌、背阔肌等;

17.史密斯机SH-G6853*1台-锻炼股四头肌、股二头肌、肱三头肌;史密斯机采用固定轨迹的杠铃设计,大大降低了训练过程中的安全风险,通过深蹲、卧推、肩推等经典动作,可以针对性地锻炼腿部力量、上肢力量、背部肌群、胸部塑形以及肩部稳定等,从而全面提升身体素质,满足不同的健身需求。

18.多重可调节练习椅SH-G6857-锻炼部位:组合及辅助训练;

19.背部伸展练习器SH-G6858-锻炼部位:竖脊肌;

20.腹肌练习椅SH-G6879*2-锻炼部位:腹直肌、腹外斜肌;

21.10付哑铃架套组SH-G6884*1套(2.5/5.0/7.5/10/12.5/15/17.5/20/22.5/25kg各一副/2个);

22.调节哑铃凳SH-G6855*1台-辅助性器材;

健身器材安装完成后,还可提供教练上门指导器械使用,通过教练的指导,让职工都知道如何使用健身器材,也有效避免了盲目训练和意外受伤。

此方案要求面积小于211平米,适用于企事业单位健身房、酒店会所健身房、学校健身房、商用健身房、楼盘社区,能满足20-40人同时健身使用。(方案根据场地空间大小、预算、产品需求等进行配置,以下配置仅为启发性参考)

关键字:单位健身房器材,职工健身房配置,室内健身器材厂家-广西南宫NG28体育健身器材有限公司

南宫NG28体育首页 产品中心 解决方案 工程案例 科学健身 南宫NG28荣誉

分享

取消